Yacht is no longer available for sale.

Yacht is no longer available for sale.

This is an archived web page showing historic information for reference purposes only. Search Yachts for Sale.

BART ROBERTS Yacht for Sale

Length 262' 1" (80.8m) Builder Canadian Vickers Build 1963/2002

Guests
20
Crew
12

Yacht is no longer available for sale.
This is an archived web page showing historic information for reference purposes only. Search Yachts for Sale.

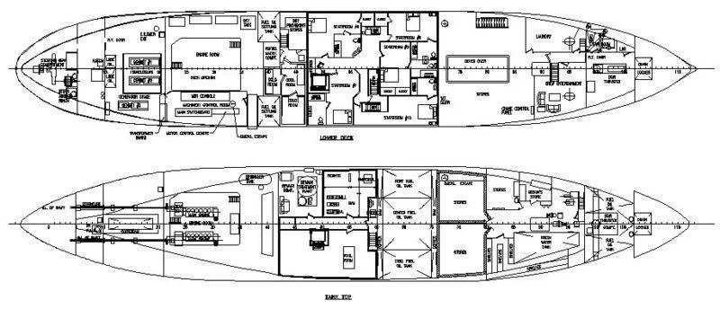
Introducing the epitome of opulence and grandeur, BART ROBERTS. This magnificent expedition yacht was built by the renowned Canadian Vickers shipyard in 1963, boasting a length of an impressive 262 feet (80.77 meters) and a beam of 39 feet (12.8 meters). With its robust steel hull, BART ROBERTS exudes strength and durability while maintaining an air of elegance and sophistication.

This majestic vessel is not just about size; it's also about performance. Equipped with two powerful Ruston 6RKC engines with a combined power output of 1999 horsepower or 1491 kW, BART ROBERTS can achieve cruising speeds of up to 12 knots and reach maximum speeds of up to13 knots. The yacht's substantial fuel capacity of over one hundred thousand gallons ensures long-range expeditions across the world's most exotic waters without frequent refueling stops.

Moving inside this luxurious vessel, you will find accommodations for up to twenty guests spread across ten lavish cabins. Each cabin is designed with utmost attention to detail ensuring comfort beyond measure for all guests on board. In addition, there are quarters for twenty-four dedicated crew members who are always at your service ensuring that every journey aboard BART ROBERTS is nothing short of extraordinary.

The interior design reflects an elegant blend of traditional charm and modern luxury; each space is tastefully adorned with high-end furnishings and state-of-the-art amenities. The main salon serves as the perfect spot for socializing or unwinding after a day full of adventure at sea while the dining area offers an exquisite culinary experience under a star-lit sky.

Atop this grand vessel lies a helicopter pad providing easy access to remote locations or quick city hops whenever desired by our esteemed guests. For those looking for some fun in the sun, there’s no shortage of water toys including jet skis, paddleboards, inflatables and more.

In conclusion, BART ROBERTS isn’t just another yacht—it’s an embodiment of unrivaled luxury on water that promises unforgettable experiences filled with adventure, relaxation and pure bliss.

In The News

Specifications

Builder Canadian Vickers
Length (LOA) 262' 1" (80.8m)
Year 1963
Year Refit 2002
Gross Tonn. 2,044
Draft 9' 5" (3.8m)
Beam 39' 1" (12.8m)
Location Dubai, United Arab Emirates

Accommodations

Twin Cabins 2
Double Cabins 8
Crew Sleeps 12

Dimensions & Capacity

LOA 262' 1" (80.8m)
LWL 220' (67m)
Max Draft 9' 5" (3.8m)
Fuel Tank 416,395 g (1,576,055 L)
Fresh Water 22,145 g (83,818 L)
Gross Tonn. 2,044
Displacement 2,500

Construction

Hull Material Steel
Hull Config Displacement
Ext. Designer Lennart Edstram
Int. Designer Tradepower International
Max Speed 13 Knots
Cruising Speed 12 Knots
Have Questions?

Complete the form below and one of our experienced sales brokers will be in touch soon.